CN | EN

点型红外火焰探测器

产品型号:JTG-U-JBF4386-Ex

JTG-U-JBF4386-Ex点型红外火焰探测器(以下简称火焰探测器),使用专门设计的三波段IR(红外)传感器和UV(紫外)传感器来共同采集火焰的红外和紫外特征信号,再通过内置的高速微处理器和先进的信号处理算法,可有效的区分出真实的火焰辐射与干扰源。该产品具备光路自检功能,可靠性极高、报警速度快、可多级灵敏度设置、优良的隔爆和防护设计,能够满足在各种严酷的工业场景中使用。
返回产品
600x600产品_副本
产品介绍

功能特点

产品采用工业标准要求设计,性能稳定可靠。

核心电路采用SMT表面贴装工艺,可靠性高,一致性好。

三色指示灯可显示正常工作状态、报警及故障状态。

多级灵敏度可调。

红外和紫外双光谱特征,通过智能算法,相比单纯红外型火焰探测器,报警速度更快,探测距离更远、误报率更低。

完善的故障模式,能够精准定位故障信息。

自动控制的除霜功能,更好地抵抗窗口冷凝。(需订购时选配)

具备光路自检功能,每24小时进行一次光路自检,以保证产品火警功能正常、可靠。

丰富的输出接口,满足各种应用场景。

外壳采用高强压铸铝,产品隔爆性好,防护等级达到IP67,抗粉尘污染、抗潮湿及抗腐蚀能力强等特点。

有关技术资料、图样和样机均经石油和化学工业电气产品防爆质量监督检验中心(PCEC)审查检验合格。

该火焰探测器具有优良的抗干扰能力,不受风雨、高温、高湿及自然人工光源等影响,可良好的工作于室内或室外等各种严酷的工业现场环境下。

技术参数列表


使用环境

工作温度

-40~+75

贮存温度

-40~+85

相对湿度

95%(无凝露)

防爆特性

防爆标志

ExdⅡC T6 Gb/ExtDA21 IP67 T80℃

电气特性

工作电压 

额定工作电压:DC24V      工作电压范围:DC18~28V

监视电流

 17mA~27mA(DC24V)

报警电流

28mA~40mA(DC24V)

监视状态绿色闪亮,报警状态红色常亮,故障状态黄色常亮

通讯特性

输出形式

1)三组干节点输出(火警继电器、故障继电器和辅助继电器),继电器触点容量2A@30VDC。

2)RS485(Modbus协议,详见《火焰探测器RS485应用手册》);

3)4-20mA隔离输出;


编址范围

不涉及

编址方式

非编址型

最远传输距离

RS485通讯1000m,其他不涉及

兼容性

兼 容 性

通过JBF4137A中继模块后,接入JBF-11SF系列及JBF50XX系列控制器

机械特性

外 观

RAL3003宝石红

外壳材质

压铸铝

防护等级

IP67

电气接口

3×M20×1.5mm

产品质量

2.5kg(含安装架)

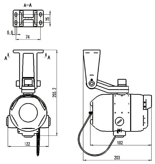
外形尺寸

L 133 mm×W 130 mm×H 182 mm;(不含安装架)

探测特性

探测特性

 响应时间 :≤5s

报警阈值:

低、中、高3级可调(出厂默认设置为中)

监视状态每次绿灯闪烁次数表示报警阈值级别

绿灯闪烁1次为低、2次为中、3次为高

(报警阈值低时探测探测性能最佳,但误报率会增加,报警阈值高时,反之)


报警延时:0-30s可调(出厂时设置为0秒)

执行标准

执行标准

GB 15631-2008 《特种火灾探测器

 GB 3836.1-2010 《爆炸性环境第1部分设备通用要求》

 GB 3836.2-2010 《爆炸性环境第2部分:由隔爆外壳“d”保护的设备》

GB 12476.1-2013《可燃性粉尘环境用电气设备第1部分通用要求》

GB 12476.5-2013《可燃性粉尘环境用电气设备第5部分外壳保护型”tD”》

结构特征、安装与布线

安装应按照GB3836.15-2000《爆炸性气体环境用电气设备第15部分:危险场所电气安装(煤矿除外)》的有关规定进行。

安装时需满足相关验收技术规范GB50257-1996《电气装置安装工程爆炸和火灾危险环境电气装置施工及验收规范》的要求。

安装时需根据现场情况配接具有防爆合格证的连接件配(电缆引入装置、防爆挠性软管、防爆接线盒、封堵件等)。

使用专用电子编码器对其设定地址码(1-200)。

端子L1、L2分别接信号线L1和L2,无极性,信号线采用ZR-RVS-2×1.5mm²双绞线。

将探测器嵌入底座,按顺时针方向拧紧即可。

外形结构图

 

                                              产品尺寸图


                  吸顶安装方式                           壁挂安装方式

                         

                            正视图                              侧视图



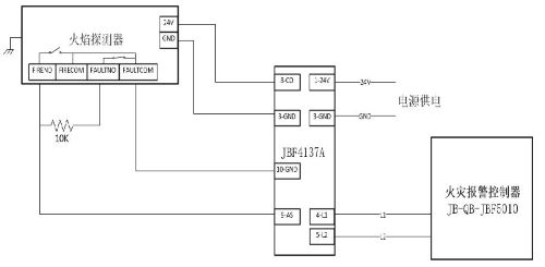
接线示意图


图2 火焰探测器与火灾报警控制器JB-QB-JBF5010接线图


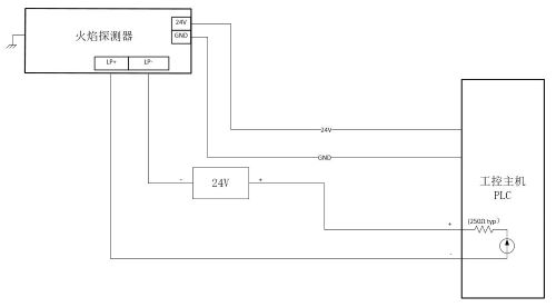
图3 火焰探测器与PLC工控机接线图

注意事项

辅助继电器根据客户实际需求连接,可提供具有2A@30VDC触点容量的无源常开/常闭触点,外接其他设备或负载应不超过辅助继电器触点容量。

 防爆电缆引入装置及封堵件需自配,且防爆等级须满足ExdⅡC T6 Gb/ExtDA21 IP67 T80℃要求。







市场部公众号

市场部公众号

官方公众号

官方公众号